"IMPULS W01" Indvendige døre
Pris
310,00 €
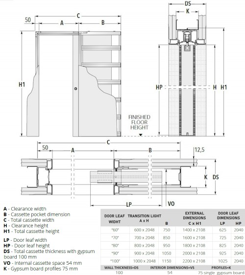
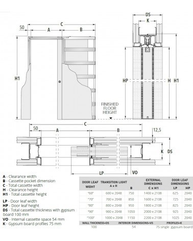
Indvendige døre - "IMPULS W01" Levering i hele Europa! Fremstillings-leveringsfrist op til 10 arbejdsdage: Farve: White; Nature oak;...









