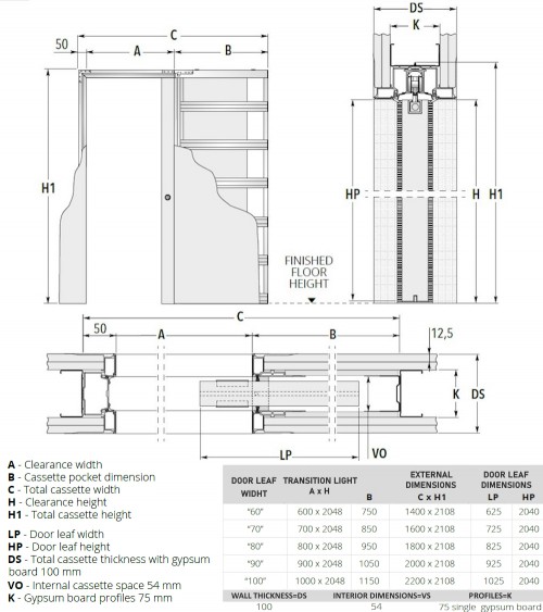
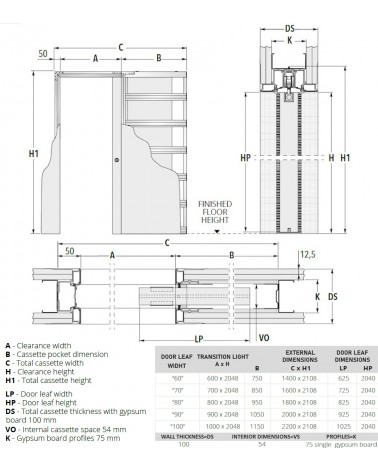
Usynlig dør "HARMONY"...
Pris
415,00 €
Usynlige indvendige døre - "HARMONY" Grundet Levering i hele Europa! Fremstillings-leveringstid: 3 - 7 arbejdsdage for følgende sæt:...
