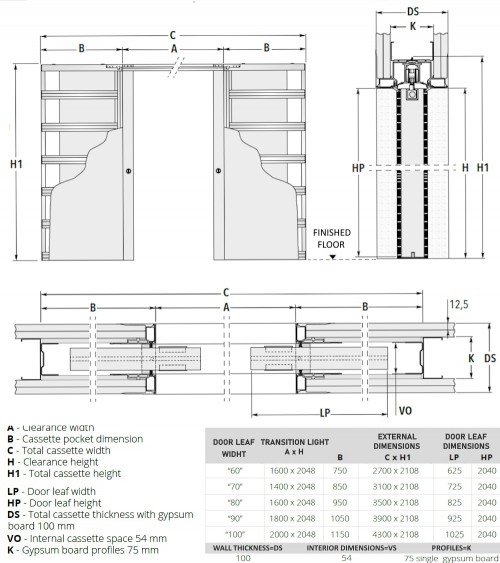
Näkymätön ovi "HARMONY"...
Hinta
415,00 €
Näkymättömät sisäovet - "HARMONY" Pohjustettu Toimitus ympäri Eurooppaa! Valmistus-toimitusaika: 3 - 7 työpäivää seuraaville sarjoille:...
