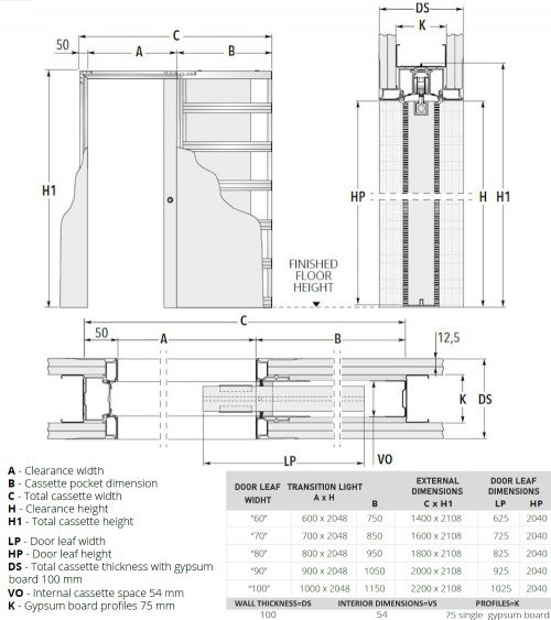
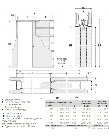
"IMPULS W01" Sisäovet
Hinta
310,00 €
Sisäovet - "IMPULS W01" Toimitus ympäri Eurooppaa! Valmistus-toimitusaika jopa 10 työpäivää: Väri: White; Nature oak; Oak Ovilevyn...









