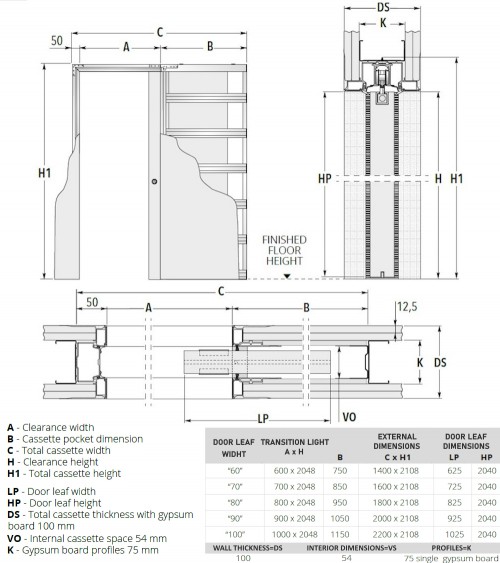
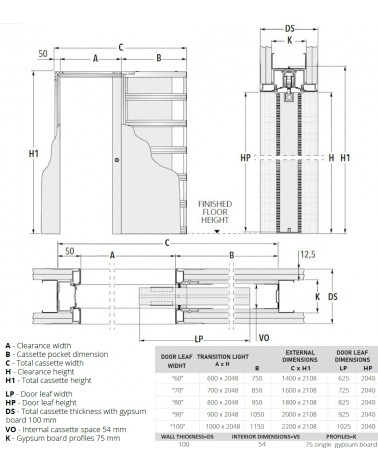
"DECO LUX V00" Binnendeuren
Prijs
€ 540,00
Binnendeuren - "DECO LUX V00"
Levering door heel Europa!
Vervaardigingstermijn: 20 - 40 dagen...







