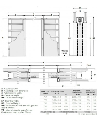
Onzichtbare deur "HARMONY"...
Prijs
€ 415,00
Onzichtbare binnendeuren - "HARMONY" Levering door heel Europa! Fabricage-levertermijn: 3 - 7 werkdagen voor de volgende sets: Breedte...
