"DECO V00" Innerdörrar
Pris
335,00 €
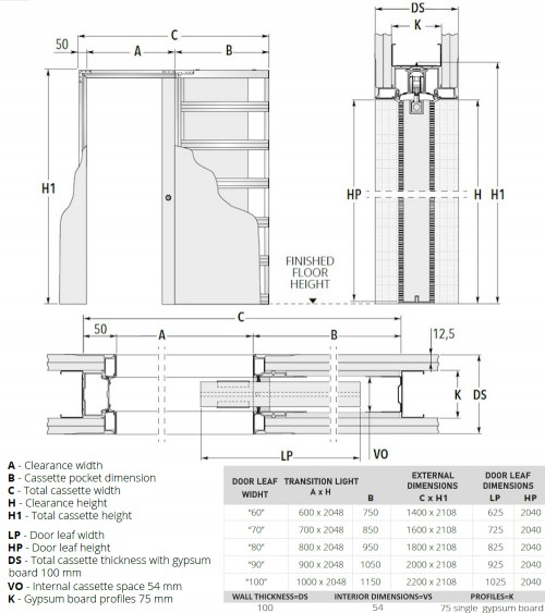
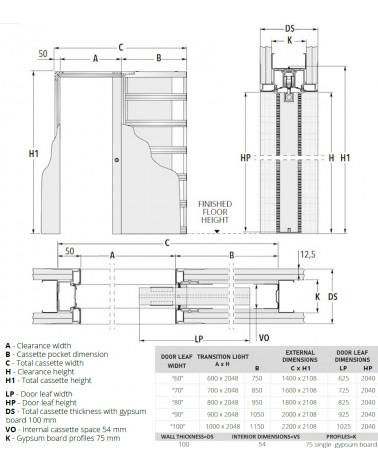
Innerdörrar - "DECO V00" Leverans över hela Europa! Tillverkning-leveransperiod upp till 10 arbetsdagar: Färg: White; Gray;...



