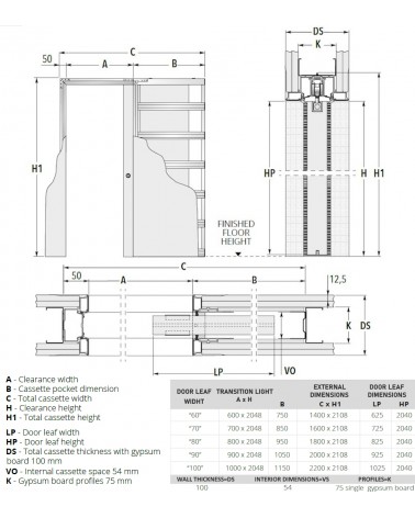
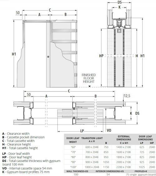
"DECO V00" Binnendeuren
Prijs
€ 335,00
Binnendeuren - "DECO V00"
Levering door heel Europa!
Fabricage-levertermijn tot 10 werkdagen: Kleur: White;...



