"CAMBIO V00" Innerdörrar
Pris
475,00 €
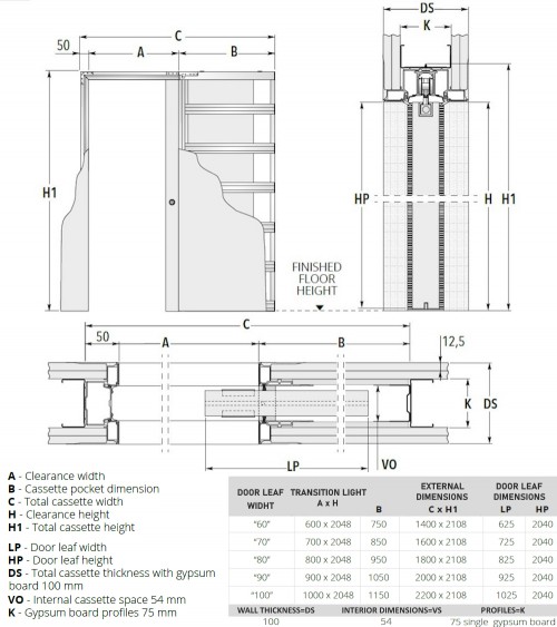
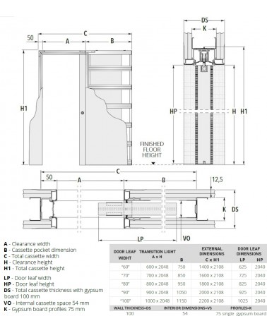
Innerdörrar - "CAMBIO V00" Leverans över hela Europa! Tillverkning-leveransperiod upp till 10 arbetsdagar: Färg: White...
