"CAMBIO V00" Sisäovet
Hinta
475,00 €
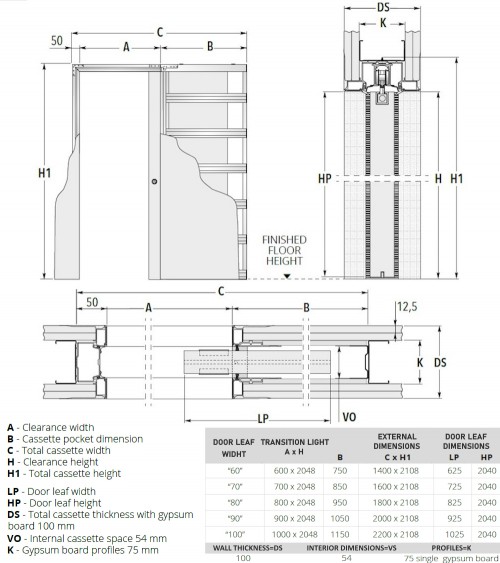
Sisäovet - "CAMBIO V00" Toimitus ympäri Eurooppaa! Valmistus-toimitusaika jopa 10 työpäivää: Väri: White Ovilevyn korkeus: 2020 mm...
